Offers Over £240,000

Heath House Lane Stoke-On-Trent ST2 8AH

6 Bed

3 Bath

2 Car

Offers Over £240,000

Heath House Lane Stoke-On-Trent ST2 8AH

6 Bed

3 Bath

2 Car

Share this listing

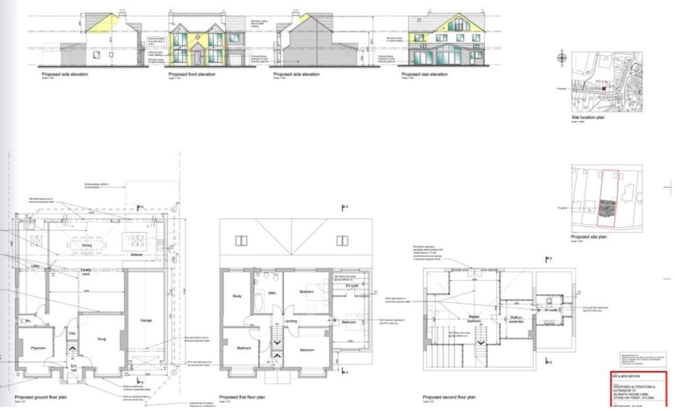
Planning application 67206/FUL

Stripped and ready to build

Plans for a SIX bedroom detached

With Five reception rooms

Great investment opportunity

Could be the Dream home

The slabs and steels are already in place

Attention all builders and investors! you need to check this out, take a look at the planning portal and the plans on the City of Stoke-on-Trent planning portal, plan ref 67206/FUL

Attention all builders and investors! you need to check this out, take a look at the planning portal and the plans on the City of Stoke-on-Trent planning portal, plan ref 67206/FUL

Yes it's going to take some work, but the plans are in place the steel is erected and the slabs are down, so don't hang about, give us a shout and come and see just what you can do.
This could be someone's dream home with Five reception rooms and a utility room and ground floor WC, plus Six bedrooms over two levels with Two en-suites. a Family bathroom and a walk in wardrobe. Massive garden and a garage, check out the plans and call 01782 202600 to arrange a viewing.

Disclaimer

Butters John Bee Estate Agents also offer a professional, ARLA accredited Lettings and Management Service. If you are considering purchasing your property in order to rent, are looking at buy to let or would like a free review of your current portfolio then please call the Lettings Branch Manager on the number shown above.

Butters John Bee Estate Agents is the seller's agent for this property. Your conveyancer is legally responsible for ensuring any purchase agreement fully protects your position. We make detailed enquiries of the seller to ensure the information provided is as accurate as possible. Please inform us if you become aware of any information being inaccurate.

Location

More Information

Domestic Rates 0.00

Room Descriptions

Accommodation

Potentially over 2,700 sq ft of living accommodation set over three floors with five reception rooms, a garage, five/six bedrooms, two en-suites and a family bathroom.

Planning reference

67206/FUL | Single storey front porch, two first floor front facing bay windows, two storey side extension, loft conversion to contain rear facing dormer and single storey rear extension.

Ground Floor

Grand kitchen and dining room. Large Family room. Snug. Play room. Utility room and a ground floor WC.

First Floor

Four bedrooms, one with an en-suite plus a study/fifth bedroom and a Family bathroom.

Second Floor

Master bedroom with a walk in wardrobe and an en-suite.

Current Ground Floor

Stripped out to reveal four rooms plus aground floor WC.

Current First Floor

Three bedrooms and the bathroom have been stripped back to brick.

Exterior

There is a garden and driveway to the front and an extensive rear garden with an outbuilding.

External Changes

There are three insulated slabs in place ready for the extensions along with erected Steels (RSJ's) plumbing and drainage.

Agents Note

Council Tax. We have been informed by our vendor that at present due to the condition there is no council tax charged. Please be aware that this is subject to change.

Share this listing

Property enquiry form background image

Property Enquiry

Request submitted!

Something went wrong.